Larchmont Cabin

Originally built in 1988 by our Chief Architect Dale Cummins as a family retreat, this mid century modern style cabin it a great example of using uncommon design styles effectively. It's certainly the only one on the block and perhaps the entire mountain.   

View Larchmont Cabin As-built in Chief Architect’s 3D Viewer.

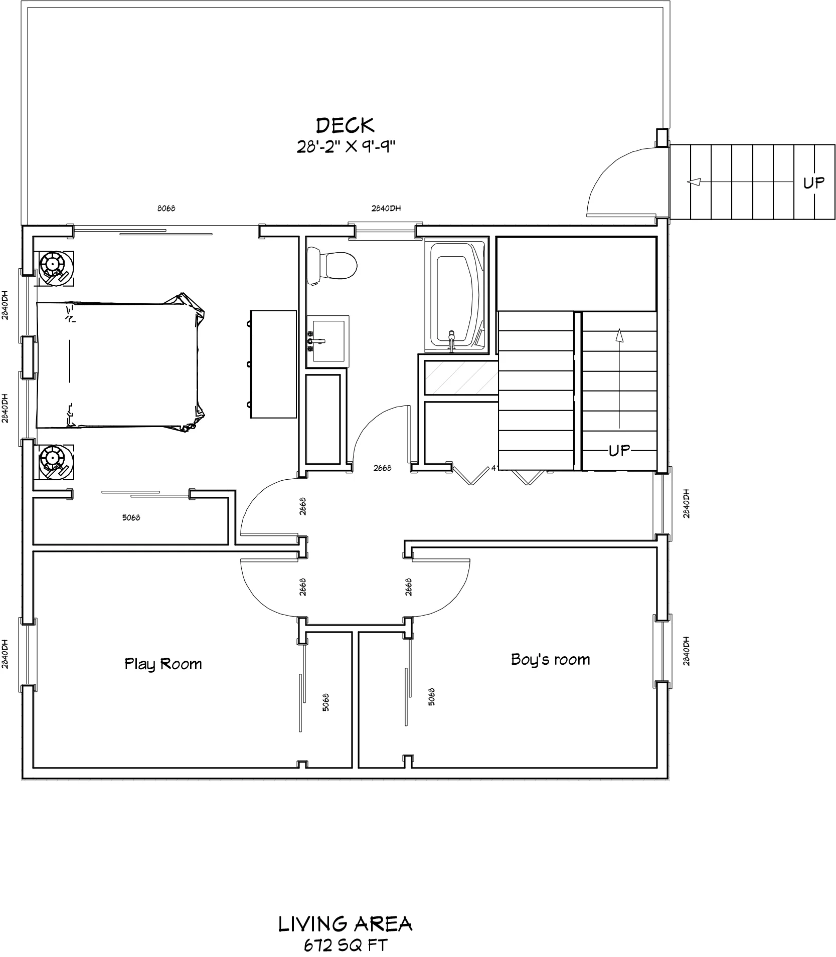
ADDITION CONCEPT

1. Extended living room

2. Added bedroom

3. New deck

View Larchmont Cabin 2.0 in Chief Architect’s 3D Viewer.

Douglas CumminsComment